Appartement "58m²" Villefranche/mer
Architecture d'intérieur
Contexte & Demande
Un couple avec deux enfants venait d’acquérir cet appartement de 58 m², resté dans son jus depuis sa construction. Leur souhait : tout repenser, autant sur le plan esthétique que fonctionnel. L’objectif était de moderniser les lieux tout en intégrant : Un coin bureau, une buanderie, un dressing parental, une salle de bain plus spacieuse et davantage de rangements
Etat des lieux

Mon rôle
J’ai accompagné les clients de l’état des lieux jusqu’à l’avant-projet définitif. J’ai proposé plusieurs redistributions de l’espace afin d’optimiser la circulation, gagner en luminosité et répondre à tous leurs besoins du quotidien. Mon travail a consisté à :
• Repenser l’implantation des pièces• Créer des volumes plus ouverts• Intégrer du rangement sur mesure• Fournir des plans et 3D pour aider à la projection
Avant-projet sommaire
Croquis
Objectifs & Contraintes
L’appartement, très cloisonné à l’origine, offrait peu de lumière et de rangement. Il a fallu repenser les volumes, créer un espace jour spacieux et fluide, intégrer une cuisine sans fenêtre (avec verrière pour faire circuler la lumière), conserver deux chambres séparées, et optimiser chaque mètre carré pour répondre aux besoins d’une famille de quatre. Le tout dans un style sobre, moderne et chaleureux.
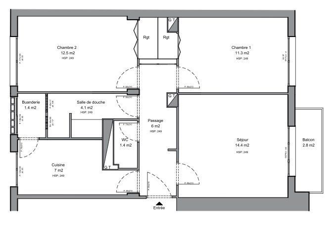
Avant-projet définitif
Résultat
L’appartement a été complètement transformé :
• La cuisine a été déplacée et ouverte sur le séjour
• Une verrière permet à la lumière de circuler
• La salle de bain a été agrandie
• Un dressing a été intégré dans la chambre parentale
• Les enfants disposent de leur propre bureau et de rangements
• Chaque espace a été optimisé avec soin pour allier confort, fluidité et esthétisme
Perspective 3D
Photos





















