Appartement "43m²" Nice
Architecture d'intérieur
Contexte & Demande
Cet appartement de 43 m², laissé en très mauvais état, présentait de nombreuses problématiques : une pièce sinistrée, un agencement incohérent, une cuisine minuscule… Il y avait même un trou dans le sol du salon et de la chambre vestige d'un ancien incendie.Le commanditaire, un marchand de biens, m’a sollicitée pour réhabiliter et valoriser ce bien, avec l’objectif de le revendre ou de le proposer à la location.
Etat des lieux
Mon rôle
Ma mission a consisté à repenser complètement la distribution des espaces : • Fermeture d’une ouverture vers un second appartement pour recréer deux lots indépendants. • Création d’une cuisine ouverte sur le salon avec un coin repas. • Agrandissement de la salle de douche pour optimiser le confort. • Transformation de la loggia en bibliothèque sur mesure, tout en conservant l’accès à la terrasse de 17 m². • Aménagement d’une buanderie dans l’espace de l’ancienne cuisine, devenue trop exiguë.
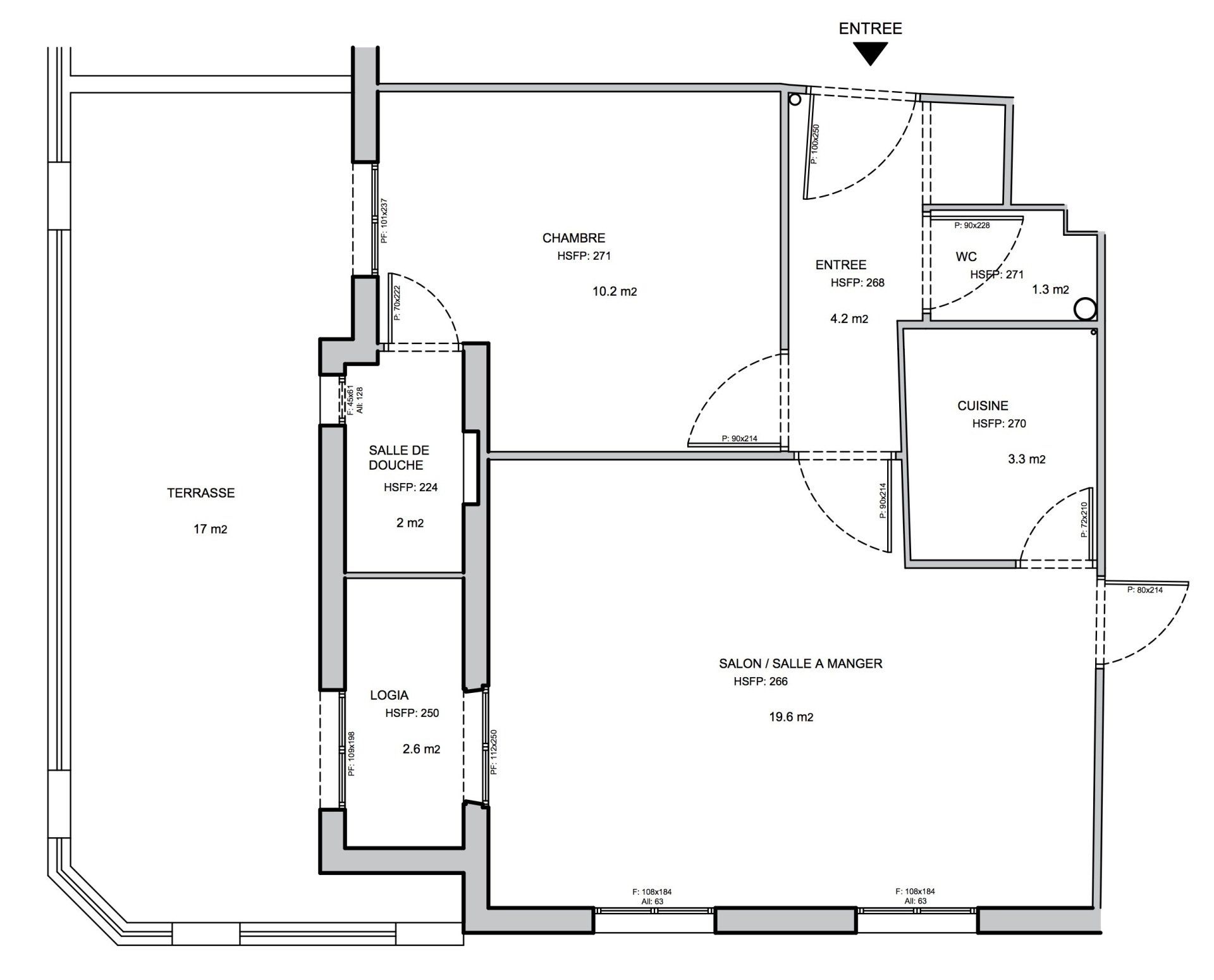
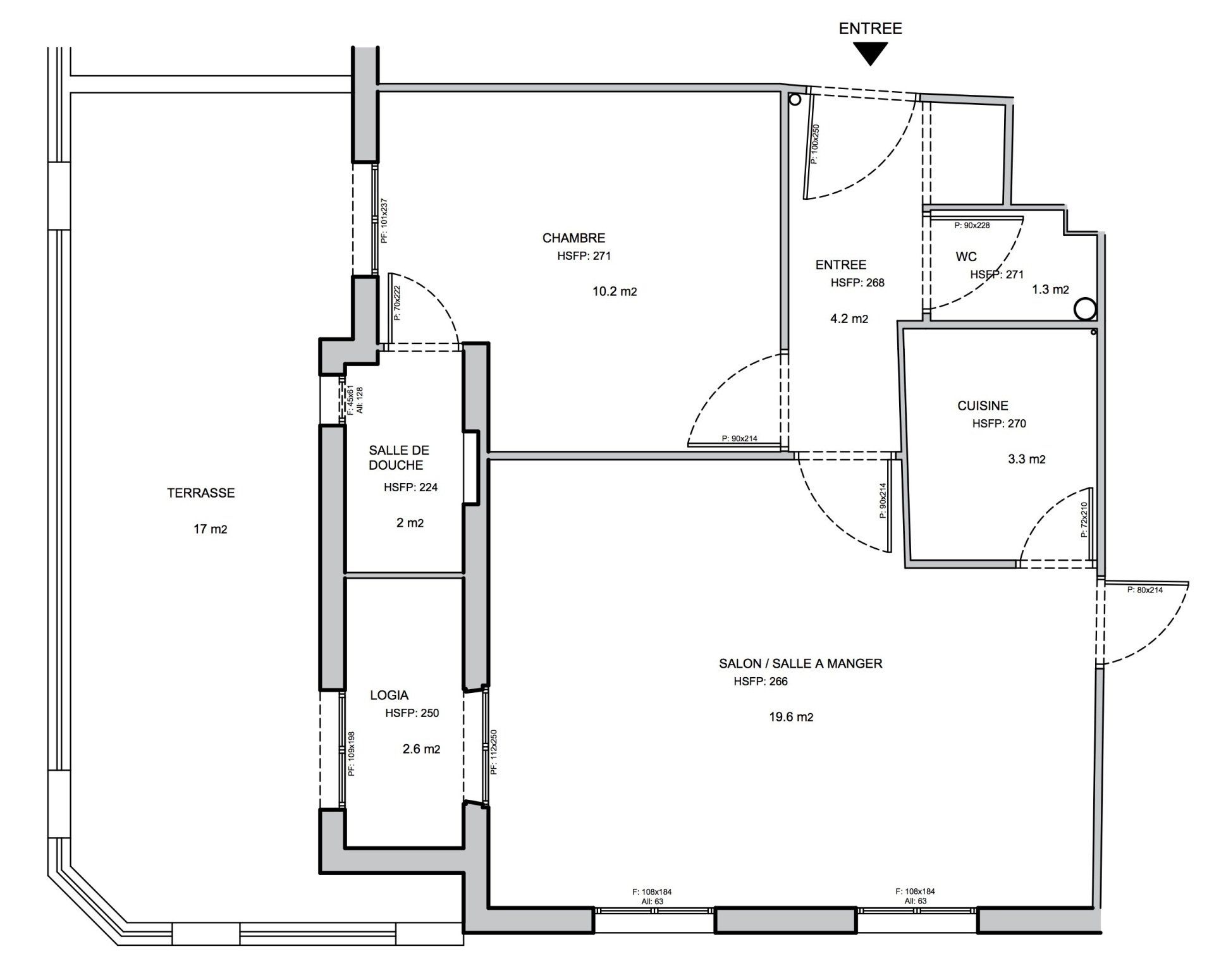
Avant-projet définitif
Objectifs & Contraintes
• Redéfinir les espaces pour rendre le logement fonctionnel et attractif, tout en respectant les contraintes techniques liées à l’existant. • Recréer une séparation nette entre cet appartement et l’unité voisine, à laquelle il était auparavant relié. • Ouvrir la cuisine sur la pièce de vie, pour un espace plus convivial. • Créer de nouveaux usages (coin repas, buanderie, rangements sur mesure) dans une surface limitée. • Travailler sur un budget maîtrisé, tout en proposant un aménagement durable et cohérent pour un futur acquéreur ou locataire.
Perspective 3D
Photos













