Appartement "48m²" Villefranche/mer
Architecture d'intérieur
Contexte & Demande
Ce couple, revenant vivre en métropole pour se rapprocher de ses enfants, souhaitait moderniser l’appartement qu’il venait d’acheter. N’étant pas satisfait de l’aménagement existant, ils ont fait appel à moi pour repenser les espaces de vie, tout en conservant certains espaces comme la chambre et le bureau.
Etat des lieux
Mon rôle
Mon intervention s’est principalement concentrée sur l’optimisation de l’agencement. Les propriétaires avaient déjà sélectionné les matériaux qu’ils souhaitaient utiliser (carrelage, peinture…), et attendaient de moi une proposition globale pour redonner de la cohérence aux espaces, fluidifier les circulations et améliorer le confort de vie dans le salon, la cuisine, la salle à manger et la salle de bain.
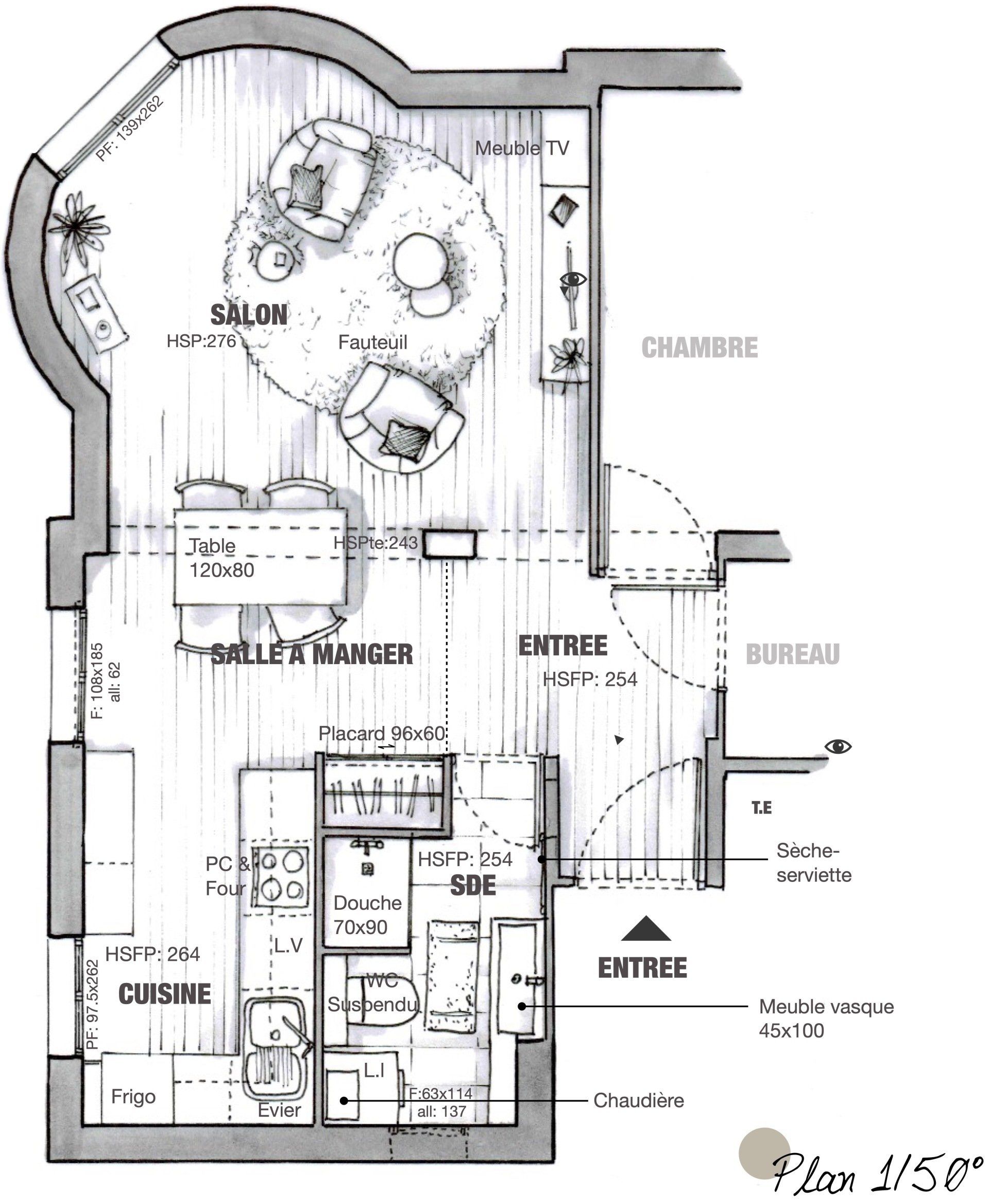
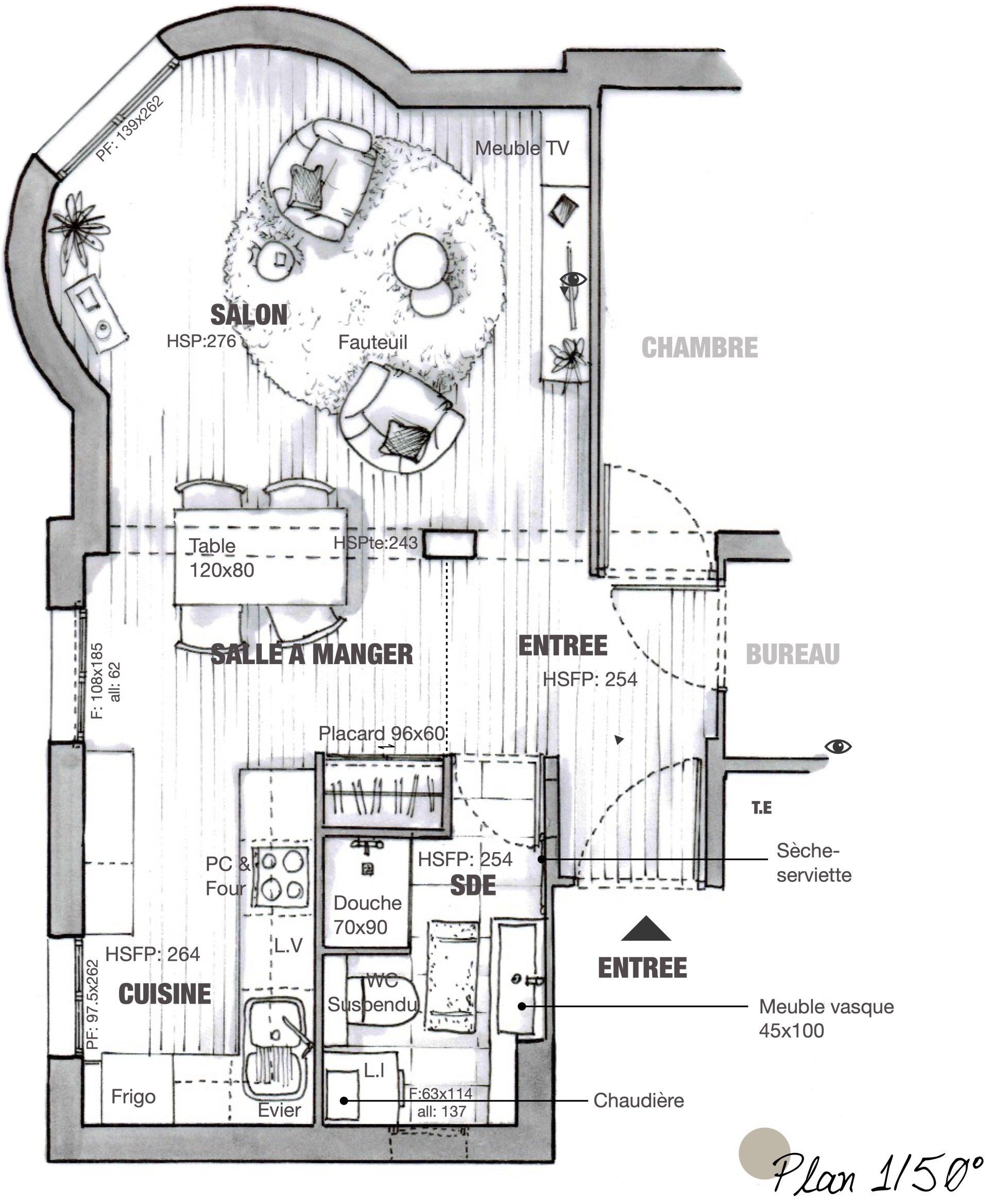
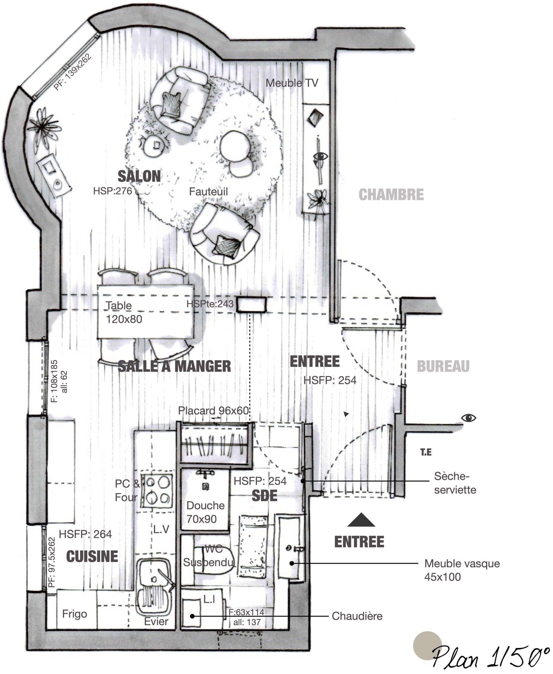
Avant-projet sommaire
Croquis
Objectifs & Contraintes
• Optimiser les volumes dans un petit appartement de 48 m² • Créer une cuisine ouverte sur le salon / salle à manger • Moderniser les pièces de vie, sans intervenir sur la chambre ni le bureau • Agrandir la salle de bain, en récupérant l’espace du placard d’entrée et en utilisant l’ancienne entrée fermée de la cuisine • Tenir compte des matériaux choisis en amont par les clients
Avant-projet définitif
Résultat
L’appartement a retrouvé de la fluidité et une circulation plus naturelle entre les pièces. La cuisine ouverte sur le séjour apporte de la luminosité et de la convivialité. La salle de bain, repensée et agrandie, offre désormais plus de confort. Le tout a été modernisé dans des tons neutres et apaisants, en accord avec l’ambiance douce souhaitée par les propriétaires.
Perspective 3D
Photos état des lieux
CUISINE












