MISS BRAIN
Appartement "82m²"Villefranche/mer
Contexte & Demande
Un couple avec deux enfants, un garçon et une fille, attend l’arrivée d’un troisième bébé, une petite fille. L’appartement de 82 m², resté dans son jus depuis sa construction, nécessitait une rénovation complète. L’objectif : créer un vrai chez-soi moderne et fonctionnel, capable d’accueillir confortablement une famille de cinq personnes, avec des espaces pensés pour chacun et une ambiance chaleureuse au quotidien.
Etat des lieux

Mon rôle
J’ai été chargée de repenser intégralement l’agencement de l’appartement pour répondre aux besoins spécifiques de cette famille grandissante. Il s’agissait de transformer les volumes existants, d’intégrer un maximum de rangements, de repenser la circulation et de redessiner les espaces de vie tout en conservant une atmosphère lumineuse et fluide. Des meubles sur mesure ont été proposés pour optimiser chaque recoin.
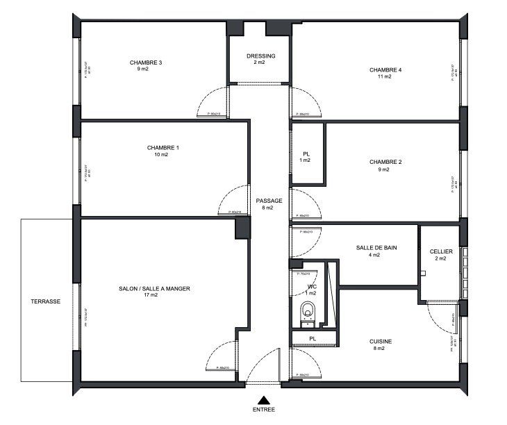
Avant-projet sommaire
Objectifs & Contraintes
L’enjeu était ambitieux : intégrer 4 chambres dans seulement 82 m², tout en conservant un espace de vie agréable. Il fallait également prévoir : • Une baignoire pour l’arrivée du bébé • Une buanderie discrète • Un coin bureau • Un dressing dans la chambre parentale
La contrainte principale
: un poteau porteur imposant, situé dans un coin de l’espace salon-salle à manger, qu’il a fallu intégrer intelligemment dans le nouvel aménagement.Enfin, la configuration initiale, typique des anciens appartements, présentait beaucoup d’espaces de circulation à optimiser
Croquis



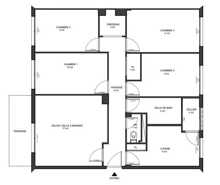
Avant-projet définitif
Résultat
Le nouvel agencement propose désormais :• Trois chambres d’enfants, optimisées selon les âges et besoins• Une chambre parentale avec dressing intégré• Une pièce de vie ouverte et conviviale• Une cuisine déplacée et redessinée pour une meilleure circulation• Une salle de bain avec baignoire• Une buanderie compacte• Un meuble d’entrée sur-mesure qui fait aussi office de meuble TV
Le projet a permis de transformer cet appartement ancien en un véritable cocon familial, parfaitement adapté à une vie à cinq.
Perspective 3D & Photos
Perspective 3D & Photos
Perspective 3D & Photos
Perspective 3D & Photos
Perspective 3D & Photos
Perspective 3D & Photos

























