MISS BRAIN
Appartement "53m²" Beaulieu/mer
Contexte & Demande
Ce jeune couple venait d’acquérir son tout premier appartement. L’agencement et la décoration n’avaient jamais été repensés depuis la construction du logement, et l’ensemble ne correspondait plus aux usages actuels. N’ayant pas un budget illimité, ils m’ont demandé de prioriser les interventions sur les espaces les plus fonctionnels : entrée, espace nuit, salle de bain et toilettes.
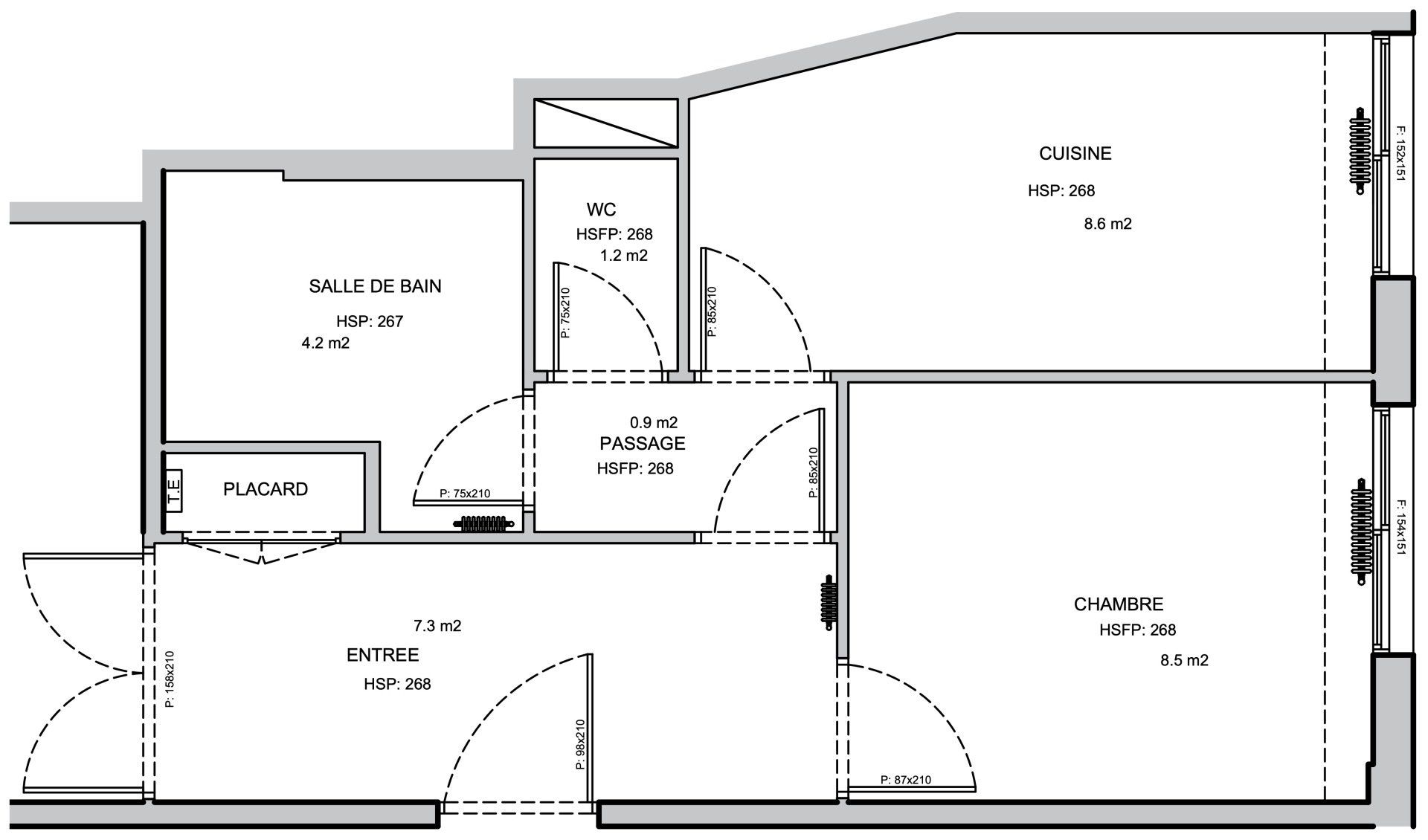
Etat des lieux

Mon rôle
Pour répondre aux attentes du couple, j’ai proposé une restructuration complète des espaces ciblés : • La chambre a été agrandie en empiétant sur le couloir et une partie de l’entrée. • L’ancienne cuisine a été transformée en dressing, créant un espace de rangement indépendant. • La cuisine a été déplacée dans le salon, pour optimiser l’espace de vie. • La salle de bain a été étendue en reprenant un placard de l’entrée, ce qui a permis d’y intégrer une machine à laver. • À leur demande, les WC ont été intégrés dans la salle de bain.
Avant-projet sommaire
Axonométrie
Objectifs & Contraintes
• Réduire les surfaces perdues (entrée/couloirs) au profit des espaces utiles. • Agrandir la chambre pour en faire un vrai cocon confortable. • Créer un dressing dans l’ancienne cuisine devenue inutile. • Ouvrir la cuisine sur le salon, pour créer une pièce de vie conviviale et moderne. • Réunir les WC et la salle de bain, à leur demande. • Intégrer un espace buanderie malgré la surface réduite.
Avant-projet définitif
Perspective 3D
Photos
Perspective 3D
Photos
Perspective 3D
Photos























